Projekt domu Z235

144 m2 · Parterowe · Projekty

Dodatkowe informacje

Plan kondygnacji

Parter

Łazienki: 1

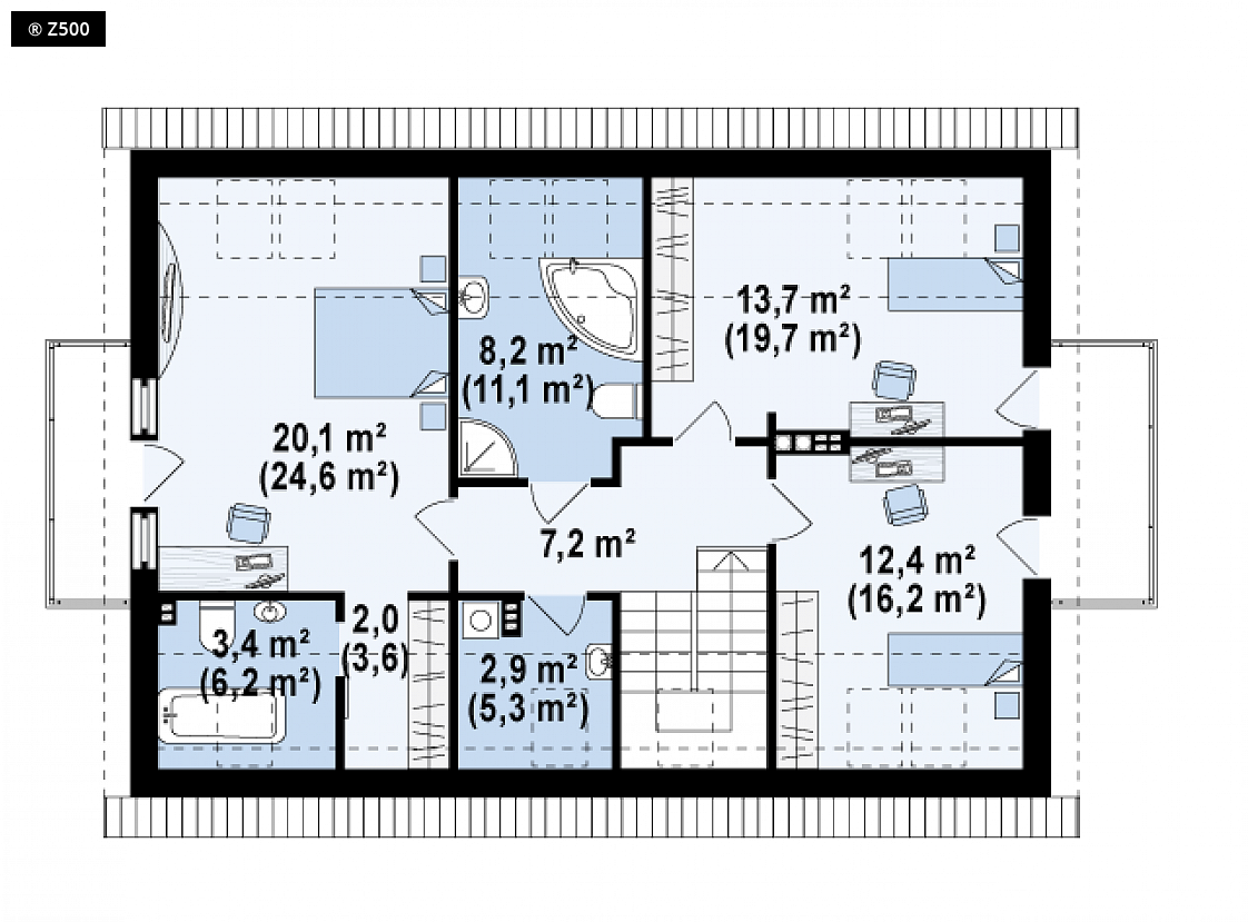
Poddasze

Łazienki: 3

Kontakt

Message has been sent successfully.

Podobne Projekty (177)

koperta_beplatne
[]
1 Step 1
BEZPŁATNA WYCENA
Imię i nazwisko
Numer telefonu
Miejscowość
Moje uwagi
0 /
Previous
Next