Projekt domu Z238

160 m2 · Parterowe · Projekty

Dodatkowe informacje

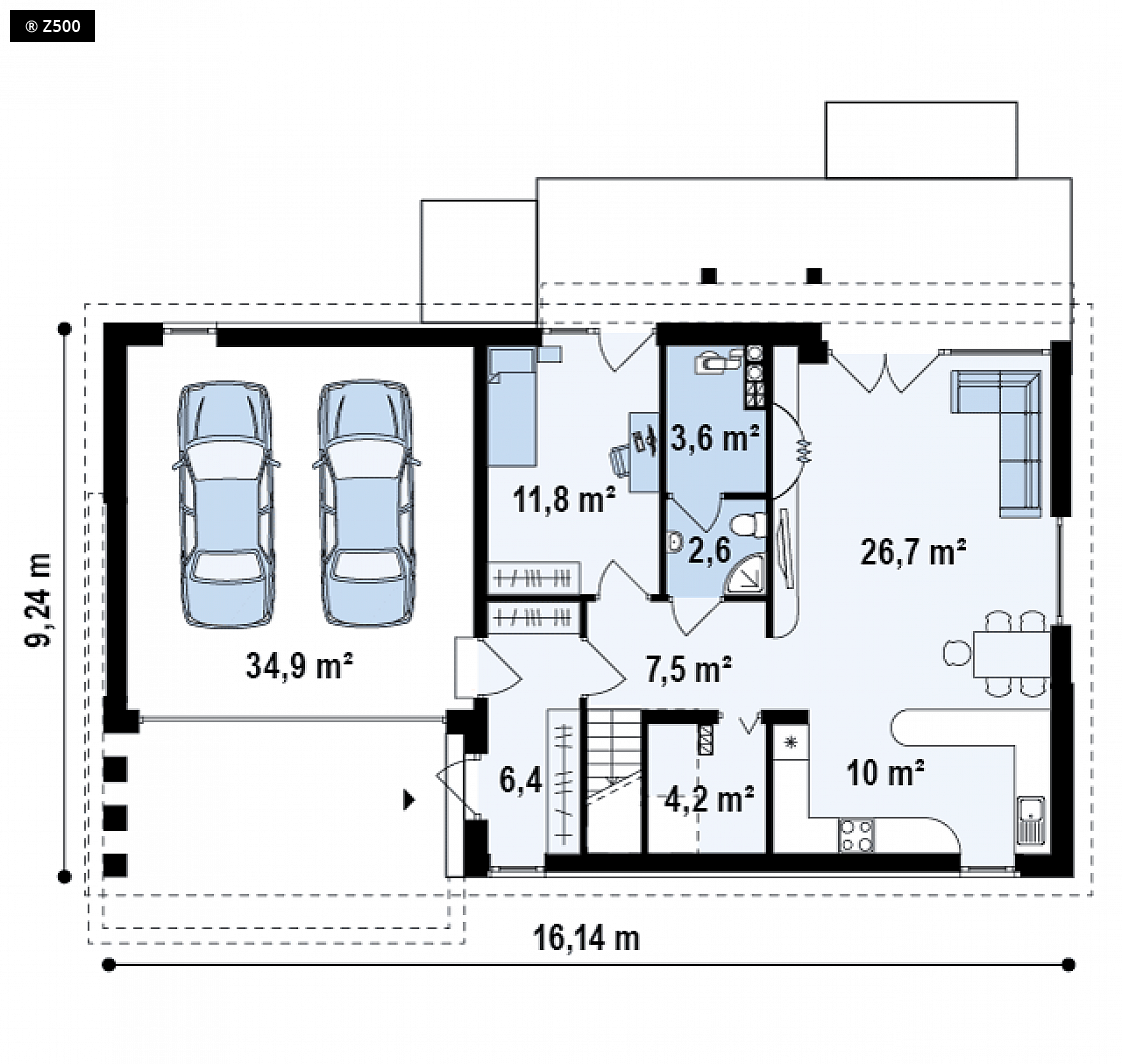
Plan kondygnacji

Parter

Łazienki: 1

Poddasze

Łazienki: 2

Kontakt

Message has been sent successfully.

Podobne Projekty (177)

koperta_beplatne
[]
1 Step 1
BEZPŁATNA WYCENA
Imię i nazwisko
Numer telefonu
Miejscowość
Moje uwagi
0 /
Previous
Next